
Neubau
Universität Heidelberg INF 104 "Heidelberg for Life"
Auf dem Campus der Universität Heidelberg entsteht mit dem Forschungsgebäude INF 104 – Heidelberg for Life (H4L) – für das international renommierte Zentrum für Molekulare Biologie Heidelberg (ZMBH) ein Ort der Begegnung, des Austauschs und der interdisziplinären Zusammenarbeit. Die Architektur übersetzt Kommunikation als Leitidee in räumliche Offenheit und vielfältige Begegnungszonen – im Außen- wie im Innenraum.
Projektdaten
Standort: Heidelberg
Bauherr: Vermögen und Bau Baden-Württemberg
Vergabe: VgV-Verfahren
Status: in Realisierung
Projektzeitraum: 2024-2029

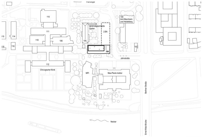
Forschungsbrücke in die Campusstruktur
Als Eingangsgebäude markiert das H4L den südöstlichen Zugang zum Campus Neuenheimer Feld.
Zwischen dem Zentrum für Molekulare Biologie Heidelberg (ZMBH) und dem Max-Planck-Institut für Medizinische Forschung (MPI) gelegen, übernimmt das Gebäude eine verbindende Rolle zwischen beiden Forschungseinrichtungen. Dadurch entsteht ein Ensemble mit starker Identität, das funktionale Anforderungen ebenso wie den stadträumlichen Kontext berücksichtigt.
Freiraum als Kommunikationsfläche
Zwischen dem Neubau H4L und dem Bestandsgebäude des MPI entsteht ein neuer Außenraum, der als grüner Treffpunkt für Begegnung und Austausch gestaltet ist. Bepflanzung und Sitzgelegenheiten schaffen eine einladende Atmosphäre und laden zum Verweilen ein. Im Norden schließt der Neubau an eine denkmalgeschützte barocke Gartenanlage sowie an eine Obstwiese an. Das verglaste Erdgeschoss nimmt diese Umgebung auf und schafft fließende Übergänge und Blickbeziehungen zwischen Innen- und Außenraum.
Flexible Labororganisation
Der Neubau H4L folgt einer kompakten, rechteckigen Grundform und erstreckt sich über vier Geschosse sowie ein zurückgesetztes Technikgeschoss. Er gliedert sich in drei Bereiche: ein vollständig verglastes Sockelgeschoss für Veranstaltungen und Seminare, drei Laborebenen als Herzstück der Forschung sowie die zurückgesetzte Technikzentrale auf dem Dach.
Die Laborflächen sind als offene Cluster organisiert, mit Auswertezonen entlang der Fassaden und innenliegenden Nebenräumen. Zwei Sichtbetonkerne bündeln technische Funktionsräume, Aufzüge sowie weitere Nebenräume und geben dem Grundriss über alle Geschosse hinweg eine klare Ordnung.

Offenheit im Forschungsalltag
Die Fassade spiegelt die funktionale Organisation des Neubaus wider. Ein regelmäßiges Grid aus leichten Glasfaserbeton-Fertigteilen und einer Holz-Aluminium-Pfosten-Riegel-Fassade gliedert das Gebäude und prägt sein äußeres Erscheinungsbild. Im Inneren schaffen helle Materialien und Farben eine offene, freundliche Atmosphäre und unterstützen sowohl gute Arbeitsbedingungen als auch die Orientierung im Haus.
